明朝嘉靖年间,王阳明在南宁创办中国首个以“敷文”命名的书院,“宣扬至仁,诞敷文德”的文化教育思想,带动了心学在广西的传播,对广西乃至全国的书院建设及文化教育产生了深刻的影响,其后全国至少建有16个“敷文书院”。南宁敷文书院历经沧桑,几度兴废,至今房舍已荡然无存。本文分析归纳历史文献,对比明清时期广西书院园林的营造特征,考证复原南宁敷文书院并分析其美学特征。本研究将为广西明清时期340余所书院文化的保护传承提供借鉴。
近年来,乡村建设中,小规模、小体量的建筑不断涌现,特别是风土建筑小品的设计营造不断出现,在建筑学建造体系课程的改革中,出现诸多小规模的建造实践。建筑从诞生时起,设计与建造就是密不可分的。实地建造建筑小品让建筑师可以获得将材料、构造、施工、结构与设计紧密结合并付诸实践建造的真实体验,充分体现了建构主义的理念。
书院起源于唐末五代十国时期,是以民间创建为主、官方倡导发展的教育机构。宋朝佛教禅林讲学制度影响下,书院形成儒家特色的教育组织和讲学制度。广西地处西南边疆,各民族杂居且远离中原文化中心。明朝广西土司反叛猖獗,加之当地民风强悍,流官管理困难。明嘉靖六年(1527)五月,广西思恩州和田州发生叛乱,严重影响边疆稳定。十二月王阳明奉命到广西镇压叛乱,在他的招抚政策感召下,来年正月,叛军首领卢苏、王受率众接受招安,不动一兵一卒平息叛乱。阳明先生看出广西叛乱横生的原因是“教化未明”,解决方法则是“教民成俗,莫先于学”,兴办书院能“引民向善、化夷为夏”,有利于边疆稳定。明嘉靖《广西通志》“书院·南宁府”记载,明嘉靖七年 (1528)王阳明在南宁城北门口县学旧址创建了南宁敷文书院,宣扬阳明心学,并聘其门人季本为山长,负责日常管理。此后广西以“敷文书院”命名的书院多达11所,如宾州敷文书院、苍梧敷文书院等,广西书院迎来发展的高峰。
1.明朝时期
根据民国版《邕宁县志》(1937)记载, 敷文书院位于南宁府宣化县北门正街口,王阳明动用军饷银两,仅用时半年建成。书院初期建有正厅、东西廊房和后厅,厅后配有田塘和园林,厅前有讲学台,王阳明亲自于书院种植两种银杏树。相传王阳明撰记,并手书匾额“以宣扬至仁,诞敷文德”。书院每日召集学生院内讲学,论辩“致良知学”。王阳明将白鹿洞书院学规张贴在讲堂内,作为敷文书院学则,并不断完善“书院讲会”制度,敷文书院成为心学在广西的传播中心,形成了阳明心学与程朱理学争鸣的局面。明嘉靖《南宁府志》中记载,敷文书院建成后历经多次修整。明嘉靖十六年(1537)知府郭楠对学院进行修整,后厅内立王阳明雕像,春秋祭祀,名为文成公祠。明万历七年(1579),首辅张居正大规模禁毁书院,敷文书院改为别署。
明万历十一年(1583),左江道陈希美、知府陈纪等再次对敷文书院进行修复。现存于南宁市人民公园镇宁炮台内《左江道修复王文成公敷文书院碑》记载:“敷文书院,公旧所题名也,手泽犹存焉尔。中为仪门,又中为大堂,堂扁曰:耀德堂,公所敷文降虏处也。两廊各翼以精舍十八楹,后为后堂,窿然特起。前道佥事欧阳公瑜,扁其上曰:道德功勋,奉公像以立。面为对越亭,旁各翼以精舍,如前廊式,后为公石像。”此次修复大致沿袭第一次修复的规制,满足讲学、祭祀、食宿之功用,后堂的建筑布局变动较为明显。梳理碑文内容,书院共三进院,大门在先,门头有“敷文书院”匾额;仪门、大堂(福耀堂)在二进院,是讲学读书之处,东西两廊为生活起居精舍18间;第三进院为抬高的后堂,此进应该是利用原有塘林地新建,欧阳瑜书写“道德功勋”匾额,院内有“对越亭”一座,堂内立有阳明先生石像,高数尺的讲学台(洗心台)后有几列房屋。明末,敷文书院被改建为兵舍。
2.清朝时期
清康熙九年(1670),左江道左翔、南宁知府韩章收回书院原址,捐资重建,建造大门1座、大堂1座,重立王阳明像,敷文书院规制焕然一新。之后,又历经清康熙十一年(1672)重修书院、二十五(1686)年、五十一年(1712)、五十六年(1717)多次重修。清雍正《廣西通志》记载:“文成公祠在城北敷文书院,祀明姚江王守仁,其手书平田功刻于壁上。”清道光二十一年(1841)知府刘梦兰、知县李天钰率士绅劝捐重修,重修仅有文字描述,无书院园林方面的记载。
3.民国至今
民国二十六年(1937)版民国《邕宁县志》记载:民国初年敷文书院犹存,名为文成公祠、文成公讲学处。民国十五年(1926)改建省立第一中学校女子部,民国十六年(1927)改为省立第三女子师范学校,民国十九年(1930)改为省立第三女子中学校,历史照片中校内有王守仁先生纪念亭,亭碑上有石刻王阳明画像。
历经数百年,几次兴衰,如今南宁敷文书院原建筑均已不存,仅遗有“王文成公讲学处”花岗岩竖条幅式石刻尚镶嵌在今广西壮族自治区储备局宿舍大门旁旧墙中。碑高2.07米,宽1.4米王阳明石刻画像方碑现移置南宁市人民公园镇宁炮台内,碑版阳面边框用缠枝纹作界格,正中为王阳明坐像,坐像上端为碑额,自右向左有阴刻篆书“王阳明老先生遗像”八个大字。
1.书院园林的概念
目前,尚没有关于书院园林的明确概念,笔者认为书院园林广义上指的是包括书院建筑在内的建筑整体布局及周边环境的园林化空间。书院园林重视的是整体和谐、和合思维观,传统书院园林环境作为一种空间遗产具有真实性、整体性特征,承载了遗产的文化价值。书院设计理念、选址、书院建筑形制、植物、碑文雕塑等园林小品等都是书院园林的营造特征。从书院园林发展变迁来看,经历了从郊野山林迁入中心城镇的过程,布局从寺庙式单轴线“前祀后学”的空间形态发展成园林式多轴自由院落空间,书院园林文化完成了从以儒学文化为主转变为儒道释俗文化共存的园林空间形态。
2.选址布局考证
早期的书院选址上受佛、道隐逸文化的影响,多选址山林地或城郊之地建造,体现了儒家追比先贤、山林隐逸的思想倾向。风景幽雅的美景之地能陶冶读书人心性和教化作用,通过自然来化育人格品质。明末官府逐渐加强对书院的控制,要求书院迁至府县城池之内,因此书院逐渐向城市周边集中,城池内的书院逐渐增多。
明嘉靖十七年(1538)《南宁府志》中南宁府城图清楚显示敷文书院选址于北门(图1),毗邻察院,北门数十丈的凹口处开了一小城门,作为城内居民运柴、粮的通道。敷文书院所在花洲在今民族大道和民权路交界城内处,一说为龙溪(朝阳溪)源头北湖村。花洲场地原有两口大水塘,旧称“花洲汛”。塘中间有柳堤,塘水长期清碧,花垂柳绿。尤其月夜良辰,月影、树影、人影,影影映入碧水中,极富诗情画意,故有“十五花洲寻夜月”一句,遂成邕州八景之一的“花洲夜月”。据记载,王阳明曾在塘边讲学,水塘则称为“书院塘”,五花洲的水塘既可种藕养花,又可蓄水防涝、防火。五花洲道路曲折,水体充沛、植被丰富,建筑错落有致,为市井繁华之处。图2为南宁城五花洲图。
图 1 敷文书院位置(来源:明嘉靖十七年《南宁府志》)
图 2 南宁城五花洲图(明《永乐大典》)
3.书院建筑考证
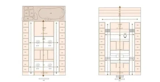
南宁敷文书院建筑的文献记录寥寥无几,从《南宁府志》(1538)和《左江道修复王文成公敷文书院碑》(1583)记载,书院建筑布局在明朝时期有过三次变化,从创建初期的二进中轴对称合院式布局演变为三进中轴合院式布局。书院建筑坐北朝南,沿着中轴线依次是大门、正厅(讲堂)、后厅、田塘,东西建有廊房供生活起居。明嘉靖十六年(1537),知府郭楠对学院进行修整时,阳明心学已经在学子中风靡一时,新立王阳明像,后厅为文成公祠。明万历十一年(1583)的修复,敷文书院建筑布局从二进合院拓展为三进合院,沿着中轴线依次是大门(敷文书院匾额)、仪门、讲堂、后堂(道德功勋匾额)、多列房屋,东西18间精舍作为生活起居用房。在第三进的末端,后堂空间抬升,后堂院内的“对越亭”、王阳明石像和三进院内洗心台是此次增加新内容(图3)。
图 3 明嘉靖——万历年间南宁敷文书院建筑布局变化
(来源:根据文献绘制)
清朝时期,南宁敷文书院历经六次书院修复,但文献中仅有事件记载,缺少具体的修复内容为佐证。清康熙末年随着政权稳定,各地开始大力扶持书院的发展,带来了书院兴建的风潮。清朝是广西书院建设高峰时期,数目增加至272所,南宁敷文书院作为明清书院的开创者,地位十分重要。对比清朝广西具有代表性的钦州东坡书院图(清朱椿年《钦州志(道光十四年刻本)》和容县绣江书院图 [容县志(光绪)]的建筑布局,可推测广西明清书院布局秉承礼制思想以讲堂为中心,规制中轴对称布局,中轴线上依次为导引空间、入口空间、礼仪空间、讲堂中心、藏书空间或祭祀空间等,从入口空间到祭祀空间前高后低,整体逐渐抬高,寓意步步高升,凸显祭祀空间的地位,沿中轴线两侧为生徒的生活空间(图4、图5)。
图 4 钦州东坡书院建筑布局分析
图 5 容县绣江书院建筑布局分析
书院牌坊也称棂星门,一般竖立大型书院建筑前面,临近路口,提醒人们进入严肃恭敬的地域,多有品题刻在牌坊。书院除了具备讲学功能之外兼有学术交往、生活起居,游憩、仓储等功能,也有如钦州东坡书院石牌坊与书院大门之间有膏火铺和铺面,以出租铺面来为书院提供膏火(书院每月发给肄业生徒的生活费用),维持书院日常运作。讲堂是整个书院的中心,讲堂前的院落多开敞且面积最大,每到讲学辩论之时能扩展面积,营造自由开放的学习空间。“顾书院之建,必崇祀先贤,以正学统”,祭祀空间是儒家“礼”文化必不可少的内容,占据书院中最为恢宏威严,放置在讲堂之后显示其尊崇的地位。
1.“礼乐相成”的空间和谐美学
书院是传播儒学道统的场所,“礼乐相成”的儒家核心思想影响敷文书院园林的择址和布局(图6)。“礼乐相成”源自《礼记》:“礼乎礼,夫礼所以制中也。”礼制文化通过“尚中为尊”来强调建筑空间中的等级秩序,形成古代书院以讲学、藏书与祭祀三大主体功能。古代“礼”代表了社会礼制和礼法等社会规范,艺术为“乐”,包括书院园林在内的艺术形式。敷文书院园林作为儒家文化产物,自然将“礼”“乐”观念反映在整体书院空间环境之中。“礼乐相成”的园林美学以中庸之道为依托,当“礼”无法达到空间美的统一时,儒家又强调“乐”补充功能。“乐”可被看作是儒家(中庸之道),道家(道法自然)和佛家(净心修性)三家融合发展一致性的中和思想。
图 6 南宁敷文书院复原总平面图
南宁敷文书院择址于“邕州八景”之一的“花洲夜月”之内,景色优美、环境怡人,王阳明书院塘边讲学,塘内荷花清香扑面、沁人心脾,借自然美景来化育人格品质,达到人、环境和书院精神的和谐统一,反映出“天人合一”的哲学理想。书院的建筑布局强调“天人合一,暗合天象”,相传掌管文化、艺术、学习考试的文曲星位于天国中的东南方向,所以“文崇东南”的朝向崇拜是书院建筑布局的首选,彰显出“礼”的空间秩序。礼制文化通过“尚中为尊”来强调建筑空间中的等级秩序。书院的主体建筑多以中轴线为统领前后递进布置,体现出对中国传统礼乐思想的遵从(图7)。
图 7 南宁敷文书院复原鸟瞰图
2.园林植物的“比德”审美
书院园林由文人营造,特别注重植物“比德”手法的运用,把植物的品性与自己的内在素质联系对比,呈现出儒家思想教育物象化的特点。如记载敷书院边池塘内种植莲花比德君子高洁,清净不染的品性。根据所处地域结合文献的合理推测,明清时期,南宁敷文书院树种应以榕树、桂花、银杏、竹子为主。榕树是广西十分常见的地方树种,树盖如伞的古榕树将书院掩映其中,颇具岭南地域景观特色。桂花寓意“蟾宫折桂、声彻琼林”,既是广西本土常用园林植物,也是书院园林首选的植物。竹象征正直,竹节中空比喻文人气节,江水倒映着岸边的翠竹,山水交融构成广西特有的山水画卷。书院园林植物是书院文化的重要组成,意蕴深远的植物渲染出书院园林“礼乐教化”的环境氛围,实现人格的升华。
3.“文以载道”的文化美学
楹联、匾额、雕塑等园林小品是传统书院文化的重要组成部分,表现出书院的教学宗旨和营造者的思想倾向,体现出“文以载道”的园林美学。书院主题命名体现出建造者的教育理想和地域特征,南宁敷文书院创建伊始,王阳明手书“以宣扬至仁,诞敷文德”匾额于大门之上,宣扬其“致良知”“知行合一”的心学理念。在历史上,书院历经多次重修,历代文人雅士多有诗咏敷文书院。如赞誉王阳明以文息武的“道德功勋”匾额等。清周起岐《咏敷文书院》有楹联“南极文星耀,西荒武库雄,百年留古院,九郡息兵戎”;清颜鼎植《谒文成书院复新》有楹联“岭外有文能止武,堂上习礼致精禋”等以景喻情,情景交融高度赞扬王阳明创建书院的丰功伟绩。
南宁敷文书院是王阳明心学在广西的发源地与传播中心,极大地推动了广西明清时期传统书院文化的发展,培养了一大批地方人才。敷文书院园林选址上传达了“礼乐相成”的哲学与审美情趣,园林美学上反映了清净幽深的书院意境,更是从园林植物、园林小品中表现出“比德审美”“文以载道”等美学思想。南宁敷文书院园林的研究,后续将会更加关注书院园林的文化内涵、景观基因及其价值评价等方面的研究,以进一步挖掘其文化环境景观的地域特色,为广西及西南民族地区文教景观研究提供借鉴和参考。
【本文作者:黄铮,广西艺术学院建筑艺术学院副教授。基金项目:2023年广西哲学社会科学研究课题“广西明清书院景观营造法式的艺术性考证与传承发展研究”(编号:23BWY002)】
参考文献
[1] 聂月琪,郭峰.中国古代学校文化管理的经验考究及其当今镜鉴[J].河南理工大学学报(社会科学),2023,24(3):69-75.
[2] 王守仁.王阳明全集[M],上海:上海古籍出版社,2012.
[3] 孙先英,覃明.敷文书院与王守仁的书院教育思想在广西的传播及影响[J].广西社会科学,2010,(3):25-28.
[4] 梁南南,鞠建新.从竹山书院略觑我国书院园林的环境特色及文化内在[J].中国园林,2009,25(03):59-63.
[5] 李晓峰,吴奕苇.传统书院作为空间遗产的价值认知、承载与保护[J].建筑遗产,2018(3):57-62.
[6] 晏琪,徐武军,付玲,等.江西省弋阳叠山书院园林变迁钩沉:基于元明清社会环境视角[J].风景园林,2018,25(12)::116-120.
[7] 张燕妮.试论古代书院的环境经营[J].宜春学院学报,2005(S1):114-116.
[8] 全昭梅.广西书院与地方文化研究[D].南宁:广西大学,2015.
[9] 张劲松.论清代书院的助学制度[J].大学教育科学,2016(1):68-73,127.
[10] 刘永辉, 李晓峰. 基于民间信仰的空间遗产研究--闽南民间书院祭祀空间解析[J]. 新建筑, 2022 (4):118-123.
[11] 王其亨,刘彤彤.情深而文明,气盛而化神——试论“乐”与中国古典园林[J].规划师,1997(1):38-41.
[12] 刘金波.兼性:礼乐文化传播的中国智慧研究[J].社会科学文摘,2021(10):112-114.
(本文经作者授权,中国民族建筑研究会信息宣传部整理、编辑,更多精彩内容敬请期待下期,电话:010-63261268)
文章引用请注明转自“中国民族建筑研究会”微信公众号
中国民族建筑研究会(统一社会信用代码:51100000500018442R)是1995年10月在国家民政部登记成立的全国一级社团,其业务主管单位是国家民族事务委员会。