广西
防城港
南宁
柳州
当前位置:
首页
>
防城港
>返乡建房,南宁市发布农村住宅通用建筑图集(共25个户型,造价8~40万)
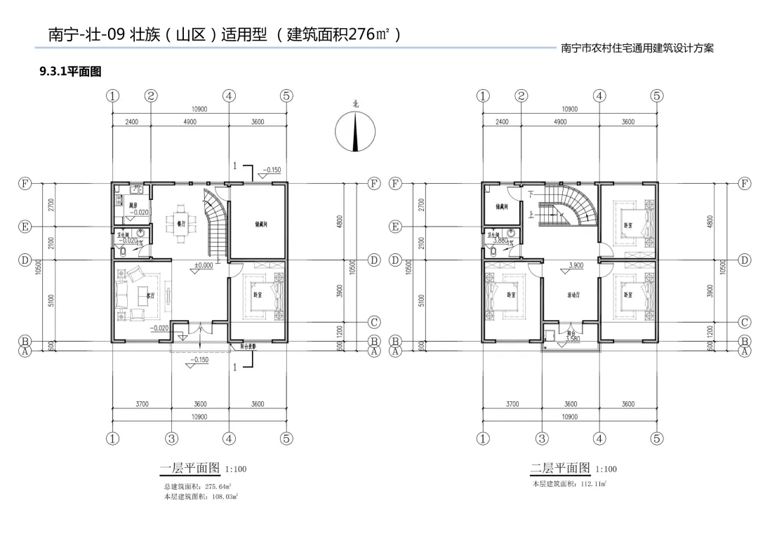
返乡建房,南宁市发布农村住宅通用建筑图集(共25个户型,造价8~40万)
2026-02-17 16:22:04
返乡建房,南宁市发布农村住宅通用建筑图集(共25个户型,造价8~40万)
本文来自网友投稿或网络内容,如有侵犯您的权益请联系我们删除,联系邮箱:wyl860211@qq.com 。
“凝心聚力谋发展 马到成功启新程” 南宁市汽车租赁行业协会2026年会盛典圆满举办!
南宁兼职南宁招聘 |除夕-大年初三双倍工资2月13号-3月8号
最新文章
“凝心聚力谋发展 马到成功启新程” 南宁市汽车租赁行业协会2026年会盛典圆满举办!
南宁兼职|后厨50元/时/卖货兼职200元/天/喜多多促销130元/时/花店兼职130元/时…查看更多兼职岗位
南宁家长收藏!背诵对于语文的意义,不是记忆和积累,而是沉淀
南宁小记:重生之我在东盟商务区放牛的一天
从农村到城市已经四十多年,曾去过广西南宁
2026-02-12 南宁 天气预报 (周四)
广西即将诞生新特大城市,南宁让位,玉林成了最大黑马!!
广西-南宁市国土空间总体规划2021-2035年草案
春节去哪玩?南宁的冬天,直接把春天搬进了园博园,值得你打卡
研学版|建发•南宁五象印月2500M²架空层 丨 创新社区共享新聚场!
热门文章
南宁救护车出租转运服务流程叙谈:私人救护车-高铁航空转运、骨灰遗体转运、跨省转院【遗体转运】
南宁没想到,钦州也没想到,如今的中国东兴,已成为全国的焦点!
南宁教师招聘,入编,广西招聘33名中学招聘教师简章
暖冬边海--南宁一日游Day2
南宁新鲜优质品质精品沃柑 特大果
南宁老板栽大了!关联公司代发工资想甩锅,法院判赔 2.9 万,冤吗?不冤!
【每日招聘】南宁太阳纸业招聘,月薪4000-8000元,五险一金,免费工作餐,夜班补贴等
南宁开锁换锁:400-886-5352,专业开锁30年经验!门锁车锁保险柜锁技术开启,24小时待命!
南宁市百灵路初级中学2026年春季教师招聘
岑溪招聘网:南宁肯德基有限公司招聘寒假工
随机文章
10个月宝宝每天需要喝多少奶粉?
南宁市邕宁区人民医院2026年春节放假期间门急诊工作安排
南宁市武鸣区修复瓷砖空鼓+拱起松动异响破裂维修复本地团队电话:133⇔7600-0672
广西“黑马”乐业:南宁没预料,百色没料到,今成全国瞩目焦点!
【长途】南宁市本地电话+159-2433-3185;长途转运非120急救跨省长途、救护转运、非救护转运遗体转运
本地南宁市良庆区地砖墙砖空鼓维修师傅电话__189↓66134984→客厅厨房卫生间瓷砖空鼓维修
【行摄邕城50】年味拉满,南宁海吉星办年货,脆蜜金桔甜过年,车厘子降价囤
南宁这是啥?也太好吃了吧!
大批俄罗斯人涌入广西南宁,打着旅游的名义,竟然绕开青秀山,对三街两巷视而不见,他们究竟发现了什么“新大陆”?
大量俄罗斯人涌入广西南宁,打着旅游的名义,不访青秀山不看方特东盟神画,想干啥?
2026人天科学少年班(南宁站)圆满落幕
基本
文件
流程
错误
SQL
调试
请求信息 : 2026-03-11 04:46:22 HTTP/2.0 GET : https://d.460.net.cn/a/473957.html
运行时间 : 0.288731s [ 吞吐率:3.46req/s ] 内存消耗:4,517.43kb 文件加载:140
缓存信息 : 0 reads,0 writes
会话信息 : SESSION_ID=cc9366d87dad76799d147b4a79c71d9f
/yingpanguazai/ssd/ssd1/www/d.460.net.cn/public/index.php ( 0.79 KB )
/yingpanguazai/ssd/ssd1/www/d.460.net.cn/vendor/autoload.php ( 0.17 KB )
/yingpanguazai/ssd/ssd1/www/d.460.net.cn/vendor/composer/autoload_real.php ( 2.49 KB )
/yingpanguazai/ssd/ssd1/www/d.460.net.cn/vendor/composer/platform_check.php ( 0.90 KB )
/yingpanguazai/ssd/ssd1/www/d.460.net.cn/vendor/composer/ClassLoader.php ( 14.03 KB )
/yingpanguazai/ssd/ssd1/www/d.460.net.cn/vendor/composer/autoload_static.php ( 4.90 KB )
/yingpanguazai/ssd/ssd1/www/d.460.net.cn/vendor/topthink/think-helper/src/helper.php ( 8.34 KB )
/yingpanguazai/ssd/ssd1/www/d.460.net.cn/vendor/topthink/think-validate/src/helper.php ( 2.19 KB )
/yingpanguazai/ssd/ssd1/www/d.460.net.cn/vendor/topthink/think-orm/src/helper.php ( 1.47 KB )
/yingpanguazai/ssd/ssd1/www/d.460.net.cn/vendor/topthink/think-orm/stubs/load_stubs.php ( 0.16 KB )
/yingpanguazai/ssd/ssd1/www/d.460.net.cn/vendor/topthink/framework/src/think/Exception.php ( 1.69 KB )
/yingpanguazai/ssd/ssd1/www/d.460.net.cn/vendor/topthink/think-container/src/Facade.php ( 2.71 KB )
/yingpanguazai/ssd/ssd1/www/d.460.net.cn/vendor/symfony/deprecation-contracts/function.php ( 0.99 KB )
/yingpanguazai/ssd/ssd1/www/d.460.net.cn/vendor/symfony/polyfill-mbstring/bootstrap.php ( 8.26 KB )
/yingpanguazai/ssd/ssd1/www/d.460.net.cn/vendor/symfony/polyfill-mbstring/bootstrap80.php ( 9.78 KB )
/yingpanguazai/ssd/ssd1/www/d.460.net.cn/vendor/symfony/var-dumper/Resources/functions/dump.php ( 1.49 KB )
/yingpanguazai/ssd/ssd1/www/d.460.net.cn/vendor/topthink/think-dumper/src/helper.php ( 0.18 KB )
/yingpanguazai/ssd/ssd1/www/d.460.net.cn/vendor/symfony/var-dumper/VarDumper.php ( 4.30 KB )
/yingpanguazai/ssd/ssd1/www/d.460.net.cn/vendor/topthink/framework/src/think/App.php ( 15.30 KB )
/yingpanguazai/ssd/ssd1/www/d.460.net.cn/vendor/topthink/think-container/src/Container.php ( 15.76 KB )
/yingpanguazai/ssd/ssd1/www/d.460.net.cn/vendor/psr/container/src/ContainerInterface.php ( 1.02 KB )
/yingpanguazai/ssd/ssd1/www/d.460.net.cn/app/provider.php ( 0.19 KB )
/yingpanguazai/ssd/ssd1/www/d.460.net.cn/vendor/topthink/framework/src/think/Http.php ( 6.04 KB )
/yingpanguazai/ssd/ssd1/www/d.460.net.cn/vendor/topthink/think-helper/src/helper/Str.php ( 7.29 KB )
/yingpanguazai/ssd/ssd1/www/d.460.net.cn/vendor/topthink/framework/src/think/Env.php ( 4.68 KB )
/yingpanguazai/ssd/ssd1/www/d.460.net.cn/app/common.php ( 0.03 KB )
/yingpanguazai/ssd/ssd1/www/d.460.net.cn/vendor/topthink/framework/src/helper.php ( 18.78 KB )
/yingpanguazai/ssd/ssd1/www/d.460.net.cn/vendor/topthink/framework/src/think/Config.php ( 5.54 KB )
/yingpanguazai/ssd/ssd1/www/d.460.net.cn/config/app.php ( 0.95 KB )
/yingpanguazai/ssd/ssd1/www/d.460.net.cn/config/cache.php ( 0.78 KB )
/yingpanguazai/ssd/ssd1/www/d.460.net.cn/config/console.php ( 0.23 KB )
/yingpanguazai/ssd/ssd1/www/d.460.net.cn/config/cookie.php ( 0.56 KB )
/yingpanguazai/ssd/ssd1/www/d.460.net.cn/config/database.php ( 2.47 KB )
/yingpanguazai/ssd/ssd1/www/d.460.net.cn/vendor/topthink/framework/src/think/facade/Env.php ( 1.67 KB )
/yingpanguazai/ssd/ssd1/www/d.460.net.cn/config/filesystem.php ( 0.61 KB )
/yingpanguazai/ssd/ssd1/www/d.460.net.cn/config/lang.php ( 0.91 KB )
/yingpanguazai/ssd/ssd1/www/d.460.net.cn/config/log.php ( 1.35 KB )
/yingpanguazai/ssd/ssd1/www/d.460.net.cn/config/middleware.php ( 0.19 KB )
/yingpanguazai/ssd/ssd1/www/d.460.net.cn/config/route.php ( 1.89 KB )
/yingpanguazai/ssd/ssd1/www/d.460.net.cn/config/session.php ( 0.57 KB )
/yingpanguazai/ssd/ssd1/www/d.460.net.cn/config/trace.php ( 0.34 KB )
/yingpanguazai/ssd/ssd1/www/d.460.net.cn/config/view.php ( 0.82 KB )
/yingpanguazai/ssd/ssd1/www/d.460.net.cn/app/event.php ( 0.25 KB )
/yingpanguazai/ssd/ssd1/www/d.460.net.cn/vendor/topthink/framework/src/think/Event.php ( 7.67 KB )
/yingpanguazai/ssd/ssd1/www/d.460.net.cn/app/service.php ( 0.13 KB )
/yingpanguazai/ssd/ssd1/www/d.460.net.cn/app/AppService.php ( 0.26 KB )
/yingpanguazai/ssd/ssd1/www/d.460.net.cn/vendor/topthink/framework/src/think/Service.php ( 1.64 KB )
/yingpanguazai/ssd/ssd1/www/d.460.net.cn/vendor/topthink/framework/src/think/Lang.php ( 7.35 KB )
/yingpanguazai/ssd/ssd1/www/d.460.net.cn/vendor/topthink/framework/src/lang/zh-cn.php ( 13.70 KB )
/yingpanguazai/ssd/ssd1/www/d.460.net.cn/vendor/topthink/framework/src/think/initializer/Error.php ( 3.31 KB )
/yingpanguazai/ssd/ssd1/www/d.460.net.cn/vendor/topthink/framework/src/think/initializer/RegisterService.php ( 1.33 KB )
/yingpanguazai/ssd/ssd1/www/d.460.net.cn/vendor/services.php ( 0.14 KB )
/yingpanguazai/ssd/ssd1/www/d.460.net.cn/vendor/topthink/framework/src/think/service/PaginatorService.php ( 1.52 KB )
/yingpanguazai/ssd/ssd1/www/d.460.net.cn/vendor/topthink/framework/src/think/service/ValidateService.php ( 0.99 KB )
/yingpanguazai/ssd/ssd1/www/d.460.net.cn/vendor/topthink/framework/src/think/service/ModelService.php ( 2.04 KB )
/yingpanguazai/ssd/ssd1/www/d.460.net.cn/vendor/topthink/think-trace/src/Service.php ( 0.77 KB )
/yingpanguazai/ssd/ssd1/www/d.460.net.cn/vendor/topthink/framework/src/think/Middleware.php ( 6.72 KB )
/yingpanguazai/ssd/ssd1/www/d.460.net.cn/vendor/topthink/framework/src/think/initializer/BootService.php ( 0.77 KB )
/yingpanguazai/ssd/ssd1/www/d.460.net.cn/vendor/topthink/think-orm/src/Paginator.php ( 11.86 KB )
/yingpanguazai/ssd/ssd1/www/d.460.net.cn/vendor/topthink/think-validate/src/Validate.php ( 63.20 KB )
/yingpanguazai/ssd/ssd1/www/d.460.net.cn/vendor/topthink/think-orm/src/Model.php ( 23.55 KB )
/yingpanguazai/ssd/ssd1/www/d.460.net.cn/vendor/topthink/think-orm/src/model/concern/Attribute.php ( 21.05 KB )
/yingpanguazai/ssd/ssd1/www/d.460.net.cn/vendor/topthink/think-orm/src/model/concern/AutoWriteData.php ( 4.21 KB )
/yingpanguazai/ssd/ssd1/www/d.460.net.cn/vendor/topthink/think-orm/src/model/concern/Conversion.php ( 6.44 KB )
/yingpanguazai/ssd/ssd1/www/d.460.net.cn/vendor/topthink/think-orm/src/model/concern/DbConnect.php ( 5.16 KB )
/yingpanguazai/ssd/ssd1/www/d.460.net.cn/vendor/topthink/think-orm/src/model/concern/ModelEvent.php ( 2.33 KB )
/yingpanguazai/ssd/ssd1/www/d.460.net.cn/vendor/topthink/think-orm/src/model/concern/RelationShip.php ( 28.29 KB )
/yingpanguazai/ssd/ssd1/www/d.460.net.cn/vendor/topthink/think-helper/src/contract/Arrayable.php ( 0.09 KB )
/yingpanguazai/ssd/ssd1/www/d.460.net.cn/vendor/topthink/think-helper/src/contract/Jsonable.php ( 0.13 KB )
/yingpanguazai/ssd/ssd1/www/d.460.net.cn/vendor/topthink/think-orm/src/model/contract/Modelable.php ( 0.09 KB )
/yingpanguazai/ssd/ssd1/www/d.460.net.cn/vendor/topthink/framework/src/think/Db.php ( 2.88 KB )
/yingpanguazai/ssd/ssd1/www/d.460.net.cn/vendor/topthink/think-orm/src/DbManager.php ( 8.52 KB )
/yingpanguazai/ssd/ssd1/www/d.460.net.cn/vendor/topthink/framework/src/think/Log.php ( 6.28 KB )
/yingpanguazai/ssd/ssd1/www/d.460.net.cn/vendor/topthink/framework/src/think/Manager.php ( 3.92 KB )
/yingpanguazai/ssd/ssd1/www/d.460.net.cn/vendor/psr/log/src/LoggerTrait.php ( 2.69 KB )
/yingpanguazai/ssd/ssd1/www/d.460.net.cn/vendor/psr/log/src/LoggerInterface.php ( 2.71 KB )
/yingpanguazai/ssd/ssd1/www/d.460.net.cn/vendor/topthink/framework/src/think/Cache.php ( 4.92 KB )
/yingpanguazai/ssd/ssd1/www/d.460.net.cn/vendor/psr/simple-cache/src/CacheInterface.php ( 4.71 KB )
/yingpanguazai/ssd/ssd1/www/d.460.net.cn/vendor/topthink/think-helper/src/helper/Arr.php ( 16.63 KB )
/yingpanguazai/ssd/ssd1/www/d.460.net.cn/vendor/topthink/framework/src/think/cache/driver/File.php ( 7.84 KB )
/yingpanguazai/ssd/ssd1/www/d.460.net.cn/vendor/topthink/framework/src/think/cache/Driver.php ( 9.03 KB )
/yingpanguazai/ssd/ssd1/www/d.460.net.cn/vendor/topthink/framework/src/think/contract/CacheHandlerInterface.php ( 1.99 KB )
/yingpanguazai/ssd/ssd1/www/d.460.net.cn/app/Request.php ( 0.09 KB )
/yingpanguazai/ssd/ssd1/www/d.460.net.cn/vendor/topthink/framework/src/think/Request.php ( 55.78 KB )
/yingpanguazai/ssd/ssd1/www/d.460.net.cn/app/middleware.php ( 0.25 KB )
/yingpanguazai/ssd/ssd1/www/d.460.net.cn/vendor/topthink/framework/src/think/Pipeline.php ( 2.61 KB )
/yingpanguazai/ssd/ssd1/www/d.460.net.cn/vendor/topthink/think-trace/src/TraceDebug.php ( 3.40 KB )
/yingpanguazai/ssd/ssd1/www/d.460.net.cn/vendor/topthink/framework/src/think/middleware/SessionInit.php ( 1.94 KB )
/yingpanguazai/ssd/ssd1/www/d.460.net.cn/vendor/topthink/framework/src/think/Session.php ( 1.80 KB )
/yingpanguazai/ssd/ssd1/www/d.460.net.cn/vendor/topthink/framework/src/think/session/driver/File.php ( 6.27 KB )
/yingpanguazai/ssd/ssd1/www/d.460.net.cn/vendor/topthink/framework/src/think/contract/SessionHandlerInterface.php ( 0.87 KB )
/yingpanguazai/ssd/ssd1/www/d.460.net.cn/vendor/topthink/framework/src/think/session/Store.php ( 7.12 KB )
/yingpanguazai/ssd/ssd1/www/d.460.net.cn/vendor/topthink/framework/src/think/Route.php ( 23.73 KB )
/yingpanguazai/ssd/ssd1/www/d.460.net.cn/vendor/topthink/framework/src/think/route/RuleName.php ( 5.75 KB )
/yingpanguazai/ssd/ssd1/www/d.460.net.cn/vendor/topthink/framework/src/think/route/Domain.php ( 2.53 KB )
/yingpanguazai/ssd/ssd1/www/d.460.net.cn/vendor/topthink/framework/src/think/route/RuleGroup.php ( 22.43 KB )
/yingpanguazai/ssd/ssd1/www/d.460.net.cn/vendor/topthink/framework/src/think/route/Rule.php ( 26.95 KB )
/yingpanguazai/ssd/ssd1/www/d.460.net.cn/vendor/topthink/framework/src/think/route/RuleItem.php ( 9.78 KB )
/yingpanguazai/ssd/ssd1/www/d.460.net.cn/route/app.php ( 1.72 KB )
/yingpanguazai/ssd/ssd1/www/d.460.net.cn/vendor/topthink/framework/src/think/facade/Route.php ( 4.70 KB )
/yingpanguazai/ssd/ssd1/www/d.460.net.cn/vendor/topthink/framework/src/think/route/dispatch/Controller.php ( 4.74 KB )
/yingpanguazai/ssd/ssd1/www/d.460.net.cn/vendor/topthink/framework/src/think/route/Dispatch.php ( 10.44 KB )
/yingpanguazai/ssd/ssd1/www/d.460.net.cn/app/controller/Index.php ( 4.81 KB )
/yingpanguazai/ssd/ssd1/www/d.460.net.cn/app/BaseController.php ( 2.05 KB )
/yingpanguazai/ssd/ssd1/www/d.460.net.cn/vendor/topthink/think-orm/src/facade/Db.php ( 0.93 KB )
/yingpanguazai/ssd/ssd1/www/d.460.net.cn/vendor/topthink/think-orm/src/db/connector/Mysql.php ( 5.44 KB )
/yingpanguazai/ssd/ssd1/www/d.460.net.cn/vendor/topthink/think-orm/src/db/PDOConnection.php ( 52.47 KB )
/yingpanguazai/ssd/ssd1/www/d.460.net.cn/vendor/topthink/think-orm/src/db/Connection.php ( 8.39 KB )
/yingpanguazai/ssd/ssd1/www/d.460.net.cn/vendor/topthink/think-orm/src/db/ConnectionInterface.php ( 4.57 KB )
/yingpanguazai/ssd/ssd1/www/d.460.net.cn/vendor/topthink/think-orm/src/db/builder/Mysql.php ( 16.58 KB )
/yingpanguazai/ssd/ssd1/www/d.460.net.cn/vendor/topthink/think-orm/src/db/Builder.php ( 24.06 KB )
/yingpanguazai/ssd/ssd1/www/d.460.net.cn/vendor/topthink/think-orm/src/db/BaseBuilder.php ( 27.50 KB )
/yingpanguazai/ssd/ssd1/www/d.460.net.cn/vendor/topthink/think-orm/src/db/Query.php ( 15.71 KB )
/yingpanguazai/ssd/ssd1/www/d.460.net.cn/vendor/topthink/think-orm/src/db/BaseQuery.php ( 45.13 KB )
/yingpanguazai/ssd/ssd1/www/d.460.net.cn/vendor/topthink/think-orm/src/db/concern/TimeFieldQuery.php ( 7.43 KB )
/yingpanguazai/ssd/ssd1/www/d.460.net.cn/vendor/topthink/think-orm/src/db/concern/AggregateQuery.php ( 3.26 KB )
/yingpanguazai/ssd/ssd1/www/d.460.net.cn/vendor/topthink/think-orm/src/db/concern/ModelRelationQuery.php ( 20.07 KB )
/yingpanguazai/ssd/ssd1/www/d.460.net.cn/vendor/topthink/think-orm/src/db/concern/ParamsBind.php ( 3.66 KB )
/yingpanguazai/ssd/ssd1/www/d.460.net.cn/vendor/topthink/think-orm/src/db/concern/ResultOperation.php ( 7.01 KB )
/yingpanguazai/ssd/ssd1/www/d.460.net.cn/vendor/topthink/think-orm/src/db/concern/WhereQuery.php ( 19.37 KB )
/yingpanguazai/ssd/ssd1/www/d.460.net.cn/vendor/topthink/think-orm/src/db/concern/JoinAndViewQuery.php ( 7.11 KB )
/yingpanguazai/ssd/ssd1/www/d.460.net.cn/vendor/topthink/think-orm/src/db/concern/TableFieldInfo.php ( 2.63 KB )
/yingpanguazai/ssd/ssd1/www/d.460.net.cn/vendor/topthink/think-orm/src/db/concern/Transaction.php ( 2.77 KB )
/yingpanguazai/ssd/ssd1/www/d.460.net.cn/vendor/topthink/framework/src/think/log/driver/File.php ( 5.96 KB )
/yingpanguazai/ssd/ssd1/www/d.460.net.cn/vendor/topthink/framework/src/think/contract/LogHandlerInterface.php ( 0.86 KB )
/yingpanguazai/ssd/ssd1/www/d.460.net.cn/vendor/topthink/framework/src/think/log/Channel.php ( 3.89 KB )
/yingpanguazai/ssd/ssd1/www/d.460.net.cn/vendor/topthink/framework/src/think/event/LogRecord.php ( 1.02 KB )
/yingpanguazai/ssd/ssd1/www/d.460.net.cn/vendor/topthink/think-helper/src/Collection.php ( 16.47 KB )
/yingpanguazai/ssd/ssd1/www/d.460.net.cn/vendor/topthink/framework/src/think/facade/View.php ( 1.70 KB )
/yingpanguazai/ssd/ssd1/www/d.460.net.cn/vendor/topthink/framework/src/think/View.php ( 4.39 KB )
/yingpanguazai/ssd/ssd1/www/d.460.net.cn/vendor/topthink/framework/src/think/Response.php ( 8.81 KB )
/yingpanguazai/ssd/ssd1/www/d.460.net.cn/vendor/topthink/framework/src/think/response/View.php ( 3.29 KB )
/yingpanguazai/ssd/ssd1/www/d.460.net.cn/vendor/topthink/framework/src/think/Cookie.php ( 6.06 KB )
/yingpanguazai/ssd/ssd1/www/d.460.net.cn/vendor/topthink/think-view/src/Think.php ( 8.38 KB )
/yingpanguazai/ssd/ssd1/www/d.460.net.cn/vendor/topthink/framework/src/think/contract/TemplateHandlerInterface.php ( 1.60 KB )
/yingpanguazai/ssd/ssd1/www/d.460.net.cn/vendor/topthink/think-template/src/Template.php ( 46.61 KB )
/yingpanguazai/ssd/ssd1/www/d.460.net.cn/vendor/topthink/think-template/src/template/driver/File.php ( 2.41 KB )
/yingpanguazai/ssd/ssd1/www/d.460.net.cn/vendor/topthink/think-template/src/template/contract/DriverInterface.php ( 0.86 KB )
/yingpanguazai/ssd/ssd1/www/d.460.net.cn/runtime/temp/d9f0991a7dd66afa499551bd49d930d7.php ( 11.98 KB )
/yingpanguazai/ssd/ssd1/www/d.460.net.cn/vendor/topthink/think-trace/src/Html.php ( 4.42 KB )
CONNECT:[ UseTime:0.001135s ] mysql:host=127.0.0.1;port=3306;dbname=d460;charset=utf8mb4
SHOW FULL COLUMNS FROM `fenlei` [ RunTime:0.001536s ]
SELECT * FROM `fenlei` WHERE `fid` = 0 [ RunTime:0.000725s ]
SELECT * FROM `fenlei` WHERE `fid` = 63 [ RunTime:0.000679s ]
SHOW FULL COLUMNS FROM `set` [ RunTime:0.001301s ]
SELECT * FROM `set` [ RunTime:0.000533s ]
SHOW FULL COLUMNS FROM `article` [ RunTime:0.001513s ]
SELECT * FROM `article` WHERE `id` = 473957 LIMIT 1 [ RunTime:0.001085s ]
UPDATE `article` SET `lasttime` = 1773175582 WHERE `id` = 473957 [ RunTime:0.055636s ]
SELECT * FROM `fenlei` WHERE `id` = 64 LIMIT 1 [ RunTime:0.000950s ]
SELECT * FROM `article` WHERE `id` < 473957 ORDER BY `id` DESC LIMIT 1 [ RunTime:0.001968s ]
SELECT * FROM `article` WHERE `id` > 473957 ORDER BY `id` ASC LIMIT 1 [ RunTime:0.015016s ]
SELECT * FROM `article` WHERE `id` < 473957 ORDER BY `id` DESC LIMIT 10 [ RunTime:0.018740s ]
SELECT * FROM `article` WHERE `id` < 473957 ORDER BY `id` DESC LIMIT 10,10 [ RunTime:0.027801s ]
SELECT * FROM `article` WHERE `id` < 473957 ORDER BY `id` DESC LIMIT 20,10 [ RunTime:0.005230s ]
0.290374s