万科理想城·未来星光 | 我看见生活的光
——大城收官·阅山湖旁 ·装修好房
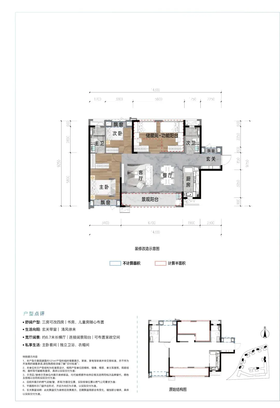
——建面约89-121㎡青年家庭友好型住区
VIP-LINE:0851—88507000
——万科深耕六载 成就理想大城——
🌆地段:繁华大城已成
理想城项目规划用地面积约 46 万㎡,总建筑面积约 100 万 ㎡,整个项目分3期7个组团,已开发6年,现已交付6个组团6359户,繁华大城已成。项目选址“阅山湖中央生态住区”的重点区域,具有“紧邻湖区、交通便利、商业成熟、教育齐备、就医便利”等系列优势。
🏬商业:商圈环绕 引领品质生活
-万达商圈:项目1公里范围内观山湖万达广场入驻品牌307个,其中38个品牌首进贵阳,近享品质生活
-万象汇商圈:项目3公里范围内,万象汇商场引进90余个贵阳首店及40余个品牌旗舰店,是目前贵阳市人流量最多的商场
-理想金街:项目自建约2.3万方的“理想金街”商业街区已开业,共有177户商家入驻,包含生鲜、水果、餐饮、美容等业态,下楼即可满足日常需求。
🏫教育:名校近在咫尺 享K12优质教育资源
-观山湖区第三十八幼儿园:原校是观山湖二幼,是目前贵阳市公立幼儿园中的优质学校,拥有塔尖软、硬件配置。
-世纪城小学理想城分校(36班):观山湖区一类公立小学,学校硬件设施先进,配备书法、舞蹈、计算机等特色教室,学校图书馆、阅览室等为学生提供良优质的学习环境。学校师资力量雄厚,教学理念先进,已开班至四年级,入学家长评价高。
-观山湖中学:观山湖区重点打造的教育名片,由全省名校长姚志鹏担任中学校长,选聘全国优秀骨干教师,为学校发展提供强大智力支持。理想城项目已成功签约观山湖中学教育资源,即将呈现优质教育学府。
🌳生态:城市绿肺 近享阅山湖湿地公园优质资源
城市级地标——阅山湖湿地公园距离项目约700米,阅山湖公园占地面积约1200亩,出门即是湖山之景,380㎡无动力乐园、3.5KM环湖跑道、自然公园等满足全龄段家庭成员的需求。
🚗交通:五横三纵路网 毗邻地铁站点 日常出行便利
项目拥有完善交通路网,毗邻环城高速,距离地铁S2号线“上麦西站”(规划中)约700米,多条公交线路经停,交通出行便利。
🏥医疗:三甲医院在旁,健康保驾护航
项目距离观山湖区妇幼保健院约3公里、距离三甲金阳医院约5公里,理想金街社区诊所已开业,医疗资源齐备。
——万科·未来星光:理想之上 再启新章——
万科·理想城深耕六载,汇集6000余户业主真实反馈,聚焦当下年轻人的生活方式,追求更好的地段、更丰富的生活配套、更时尚的社区、更有创意的产品。造城6年,理想城项目迎来了最后一块拼图——贵阳万科2023年全新升级迭代新作,万科·未来星光。

(万科·未来星光示范区效果图,非交付标准)
-项目指标
建筑面积:约12万方
物业类别:31-33F高层住宅(除非标户型,均为装修交付)
绿地率:约36.94%
产品面积:约89㎡灵动三房、约109㎡可变四房、约121㎡舒阔四房
梯户比:2T4户
-全新升级迭代产品
•更有烟火气的商业街区:约3000㎡商业街区,根据前期业主访谈结果,持续落位大型餐饮、社区诊所、品质生鲜超市等业主所需业态,生活的美好时刻,未来从这里出发

•更舒适的布局:小区采用围合式布局,呈现最大中庭园林景观,最长约百米楼间距,迎合当代人居的需求

•更艺术的表达:融合现代主义美学,项目整体立面设计明亮清澈,富有律动和光泽感,诠释现代品质人居的现代极简品味。

•更有仪式感的归家礼序:项目全新设计酒店式无雨落客庭院,既是细节关怀,更是对品质生活的精心呵护。

•更满足全龄段的景观园林:将贵州自然山水融入进社区园林造景,满足不同年龄段家庭成员的诉求

•更具特色的架空层空间
健身盒子:楼下的健身房,涵盖器材区、拳击区、瑜伽舞蹈区、自由训练区,让每一次健身运动都有随时随心的愉悦体验

学习盒子:与省植物园共建植物园科普小站,打造兼具社交的静谧学习空间,让业主在此阅读和学习,给孩子一个寓教于乐的空间,提高生活居住品质

•更灵动的空间:121㎡户型多功能空间可改造为双孩房、单孩房、书房,满足从二人世界、二胎家庭多元需求

•更巧思的设计:89㎡户型S型玄关、互动式厨房设计,满足更温情的日常

——一城璀璨 共此星光——
万科·未来星光于2023年12月16日首次亮相,即获得市场热捧,开放当月到访客户突破1000+组,共计超23家媒体及140家房产大V密集报道,曝光量超过100万+。万科·理想城历经六年造城后,未来星光项目再次刷新市场热度,成为了贵阳人民置业观山湖的首选。

——万科在贵阳——
在贵阳,每100个人中就有2个人是万科业主——万科深耕贵阳14年,累计开发25个项目,交付约8万户业主

(以上内容转自:万科·未来星光)