


1月6日,柳州市自然资源和规划局发布“静兰湾文旅小镇8号地块小学总平审查”批前公示。公示期从2026年1月6日至2026年1月12日。相关利害关系人对上述方案的意见,可以书面阐明观点理由的形式提出。有关书面意见可于2026年1月12日前送至柳州市自然资源和规划局政策法规科,联系电话为2825345。

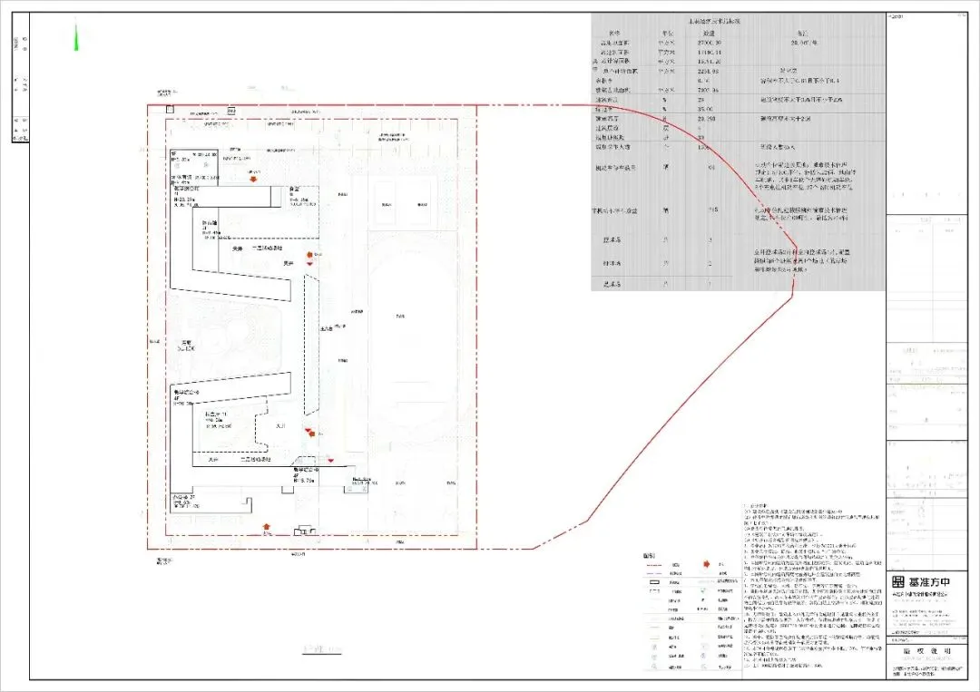
静兰湾文旅小镇8号地块小学总平审查批前公示图
记者通过公示图了解到,“静兰湾文旅小镇8号地块小学总平审查”相关内容如下:
1、设计依据
(1)建设单位提供《建设项目规划设计条件通知书》;
(2)建设单位提供的附有城市道路和规划道路红线的用地范围现状地形图(电子版);
(3)建设单位提供的用地红线图;
(4)《建筑工程设计文件编制深度规定》;
(5)《柳州市城乡规划管理技术规定》。
2、图中高程为1985国家高程基准,坐标为2000大地坐标系;
3、图中尺寸标注、标高、曲线半径均以"m"为单位;
4、单体定位坐标为外墙边线与外墙边线之间的交点坐标;
5、本图所绘制的建筑为建筑外墙面投影轮廓;建筑间距、建筑退界间距均标注至外墙皮,外墙皮未包含装饰面层厚度。
6、本图所绘制的建筑高度为室外地坪至建筑屋面女儿墙高度;
7、本工程散水形式及构造见建筑详图;
8、红线内的绿地、围墙、停车位、景观等详景观统一设计;
9、消防车道详见消防流线示意图;图中所绘消防登高场地与建筑物之间不得设置路灯、高大乔木等妨碍消防车登高操作;消防登高场地与建筑物之间范围内的道牙均做平道牙;消防通道上空净高≥4米,消防流线的转弯半径≥9米;
10、无障碍设计:建筑出入口处无障碍设施设计详见建筑专业相关图纸;按设计需要的缘石坡道、人行横道、行进盲道砖的规格尺寸,依照《无障碍设计规范》(GB50763-2012)中的要求进行定制;无障碍停车位均设置于场地南侧;
11、图中,消防车登高操作场地及消防车道下的管道和暗沟等,均能满足承受≧35吨重型荷载消防车辆压力的要求;
12、本项目海绵城市按多年平均径流总量控制率不低于70%,年径流污染消减率不低于60%。
13、本项目耐火等级为二级。
14、士0.000标高相对于绝对标高90.050。
来源丨南国今报记者韦黎
值班编辑丨苏志翔
值班主任丨陈 枫
总值班丨李旭东





最低-6℃!柳州将出现霜冻或冰冻天气

最新!柳州领导干部任职前公示

官宣!这10件事,柳州全部办成了
